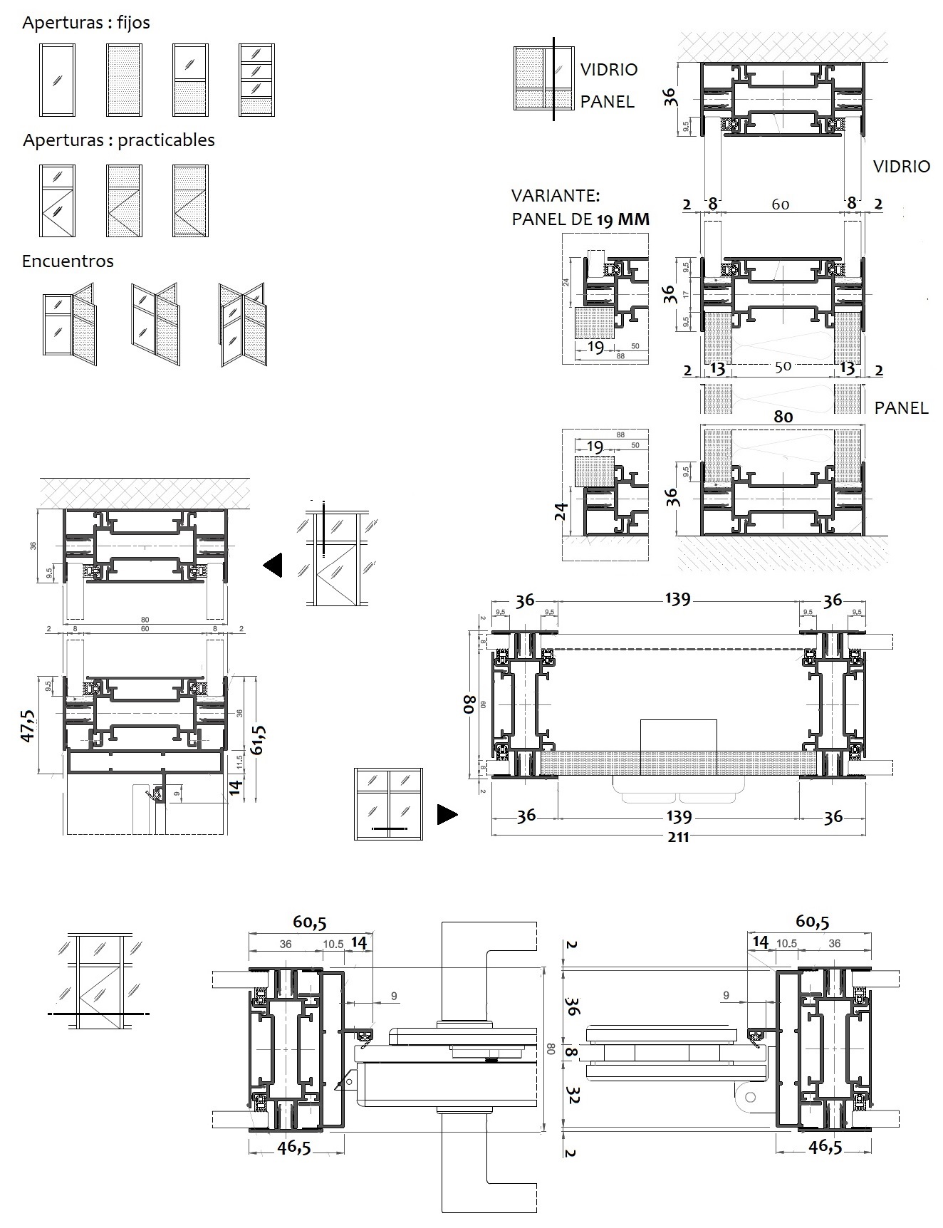
Sistema de divisió despais interiors, aptes per a col·locació de vidre o panell i permet la integració de portes practicables i venecianes.
Acristalamiento : 6+6, 8+8, 10+10 o 12+12 mm. Pes màxim : 40 KG.
Panell: des 10 mm fins 20 mm.
Secció vista (veure detalls perfils) : 12, 24 i 36 mm. Espesor perfilería : 1,5 mm.
Porta practicable: possibilitat d'integrar porta de vidre de 8 – 10 mm (ver detalle sección) el panell de 40 mm.
