.
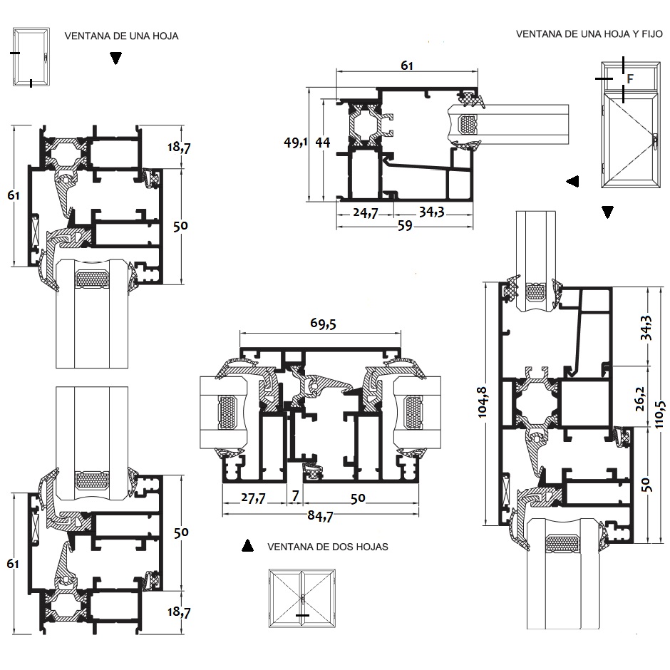
La sèrie HO 50 R.P.T C.E té un marc de 50 mm. profund i es caracteritza per la seva estètica moderna i minimalista, típic dels sistemes de fulles ocultes, amb una secció de vista exterior de només 61 mm. (marco + full) i un nus central de 84,7 mm. (full + fulla invertida), aconseguint posicionar-se dins del rang econòmic d'espais practicables amb trencament de pont tèrmic.
La seva poliamida és 18 mm. i utilitza maquinari de canals europeus. Acristalamiento: fins 32 mm.
Obertures: practicable, oscilo-batiente y abatible.
Opcional: frontisses amagades i nanses sense escut.
· Transmitància tèrmica: 1,5 W/m2.K
· Resistència a l'aire: Classe 4
· Resistència a l'aigua: Classe E900
· Resistència al vent: Classe 5
