Corredissa minimalista amb trencament tèrmic. Marcs disponibles: d' 100 mm. (ELIT 100) i de 122 mm. (ELIT 140) segons envidrament requerida (28 mm. i 36 mm. respectivamente), tots dos amb poliamida tubular.
Espesor general del aluminio de 1,7 – 1,8 mm. Peso máximo por hoja: 120 kg. / metro lineal.
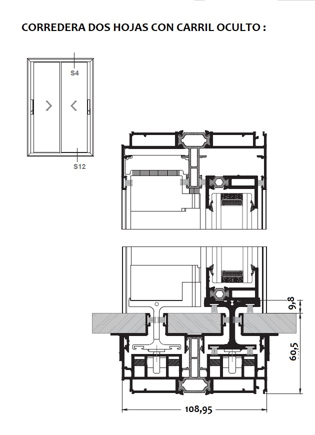
Visibilitat màxima gràcies a la secció vista ultra-reduïda de marc + full: 57,9 mm i encreuament de tan sols 25 mm. Infinitat de possibilitats d'instal·lació: amb/sense canalització (ver secciones), de tancament a cantonada, cerre "partició de blocs", carril totalment ocult i de motorització.
Disponible para 2, 3 i 4 fulles, d' 2 o 3 carriles.
