La corredera minimalista con rotura térmica ALBA PRO SYSTEM LUZ cuenta con un marco de 134 mm. y poliamida tubular de 34 mm., reforzada con fibra de vidrio, y perfil de hoja lateral con capacidad de acristalamiento de 38 mm. Espesor general del aluminio de 1,7 mm.
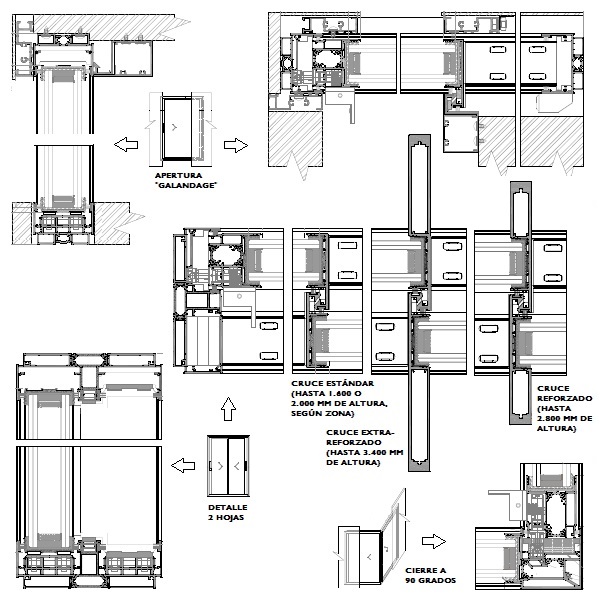
Al no poseer el perfil de hoja-casaca y siendo el cruce de tan solo 19 mm. la visibilidad es máxima.
Opción de refuerzo del cruce según altura (ver secciones).
Disponible para 2, 3 i 4 fulles, d' 2 o 3 carriles. Cierre a 90 grados disponible. Peso máximo por hoja: 800 kg.
Proves d'assaig (més informació a Catàlegs i Descàrregues):
· Transmitància tèrmica: 1,6 W/m2.K
· Resistència a l'aire: Classe 3
· Aïllament acústic: 36 (-0,-1) dB
· Resistència a l'aigua: Classe: 7A
· Resistència al vent: Classe 2
