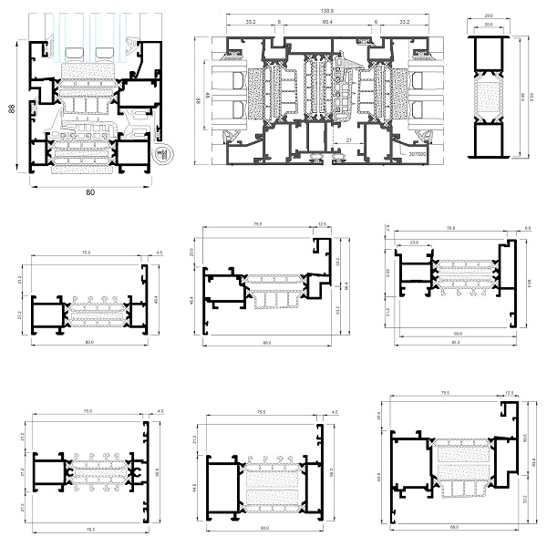
Sistema practicable de alta gama, especialmente diseñado
para obtener inmejorables prestaciones, especialmente en
aïllament tèrmic (des 0,8 W / m2.K) y atenuación
acústica (fins 46 dB), posibilidad de obtener versión Passive
House incorporando perfiles de poliolefina y ciertos herrajes,
alcanzando una transmitancia térmica de 0,66 W/m2.K.
Profundidad del marco: 80 mm, de la hoja: 88 mm.
Poliamidas tubulares de 45 mm. Acristal. máximo: 65 mm.
Peso máximo/hoja: 160 KG. Máximas dimensiones/hoja:
L: 1.600 mm, H: 2.600 mm. Posibilidades de apertura:
practicable, oscilo-batiente, oscilo-paralela y abatible. Per
apertura exterior: practicable, proyectante-deslizante.
Opcional: herraje seguridad Evo Security y bisagras ocultas.
Proves d'assaig:
· Transmit. térmica: 0,8 W/m2.K
· Resistència a l'aire: Classe 4
· Aïllament acústic: Rw: 46 dD
· Resistencia agua: Clase E1950
· Resistència al vent: Clase C5
Más información en nuestra web.
