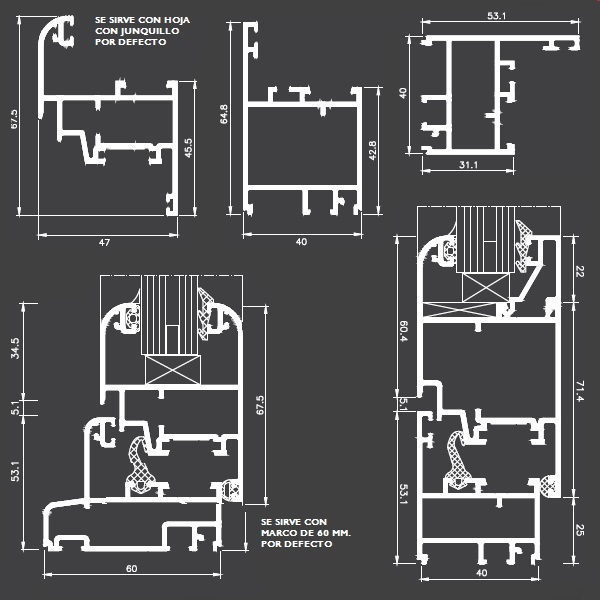
La sèrie practicable ALBA amb frontissa compta amb un marc de,,es,per defecte,,es,i un full amb capacitat per a envidrar de,,es,Destaca per la seva alta funcionalitat i versatilitat,,es,dentro de la gama económica de practicables,,ca,Adequada per a finestres i portes amb pany d'ús domèstic,,es,Compatible amb la ferramenta europeu,,es,canal d',,es,oscil·lobatent,,es,abatible,,es,oscil-paral.lela i plegable,,es,Pes màxim per fulla,,es,kg,,en,fulla recta,,es,full sense llistó de vidre,,es,marc de,,es,marc 40,,en 60 mm. (por defecto) y una hoja con capacidad para acristalar de 28 mm. Destaca por su alta funcionalidad y versatilidad, dentro de la gama económica de practicables. Adecuada para ventanas y puertas con cerradura de uso doméstico. Compatible con el herraje europeo (Canal de 21 mm.)
Obertures: practicable, oscilo-batiente, abatible, oscilo-paralela y plegable. Peso máximo por hoja: 100 kg.
Opcional: hoja recta, hoja sin junquillo, marco de 40 mm., marco de 70 mm., marco 40×43 mm.
Proves d'assaig (més informació a Catàlegs i Descàrregues):
- Transmitància tèrmica: 3,25 W/m2.K
- Resistència a l'aire: Classe 4
- Aïllament acústic: 34 (-1,-4) dB
- Resistència a l'aigua: Classe: 7A
- Resistència al vent: Classe 3
