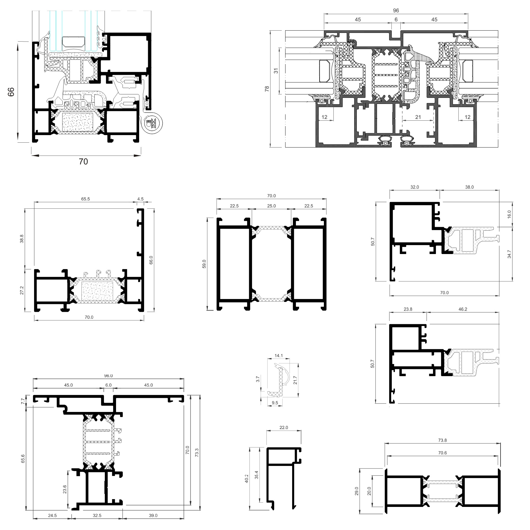
Sistema practicable de hoja oculta de altas prestaciones.
Profundidad del marco y hoja: 70 mm. Longitud poliamida:
35 mm. Las reducidas dimensiones de esta serie (altura
marco: 66 mm, nudo central: 96 mm) maximizan la
superficie acristalada y beneficiando la luminosidad interior,
característica muy común en la arquitectura contemporánea.
Máximo acristalamiento: 40 mm.
Peso máximo/hoja: 160 KG.
Posibilidades de apertura: practicable, oscilo-batiente y
abatible. Herraje: canal europeo de 21 mm.
Otras variantes: hoja recta o curva. Posibilidad de bisagras
ocultas y opción de herraje de seguridad Evo Security.
Proves d'assaig:
· Transmit. térmica: 1,0 W/m2.K
· Resistència a l'aire: Classe 4
· Aïllament acústic: Rw: 46 dD
· Resistencia agua: Clase E1650
· Resistència al vent: Clase C5
Más información en nuestra web.
