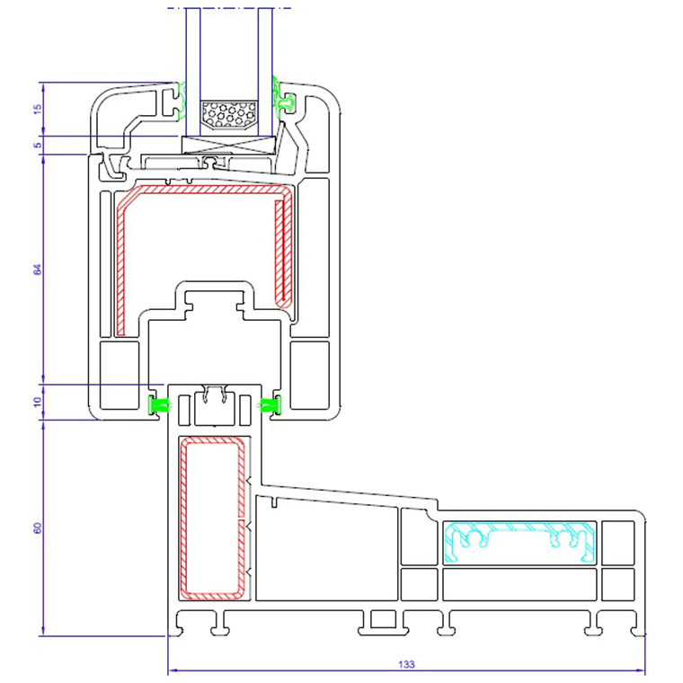
Dissenyada amb el sistema de doble junta i perfils de PVC de 133 mm., aquesta sèrie està dissenyada per a buits de porta en els quals una part és fixa i l'altra mòbil, encara que també pot realitzar-se el desplaçament de les dues fulles si així es desitja.
A causa de la seva robustesa, destaca la seva estanquitat i alta classificació a la resistència al vent, similar al de les sèries practicables.
Obertures: elevable.
Buit de llum per envidrar: des 4 mm. fins 41 mm.
Proves d'assaig (més informació a Catàlegs i Descàrregues):
• Transmitància tèrmica: 1,8 W/m2.K
• Resistència a l'aire: Classe 4
• Aïllament acústic: 30 dB
• Resistència a l'aigua: Classe: 4A
• Resistència al vent: Classe 3
Imprimir

PVC 500 Elevable
Accesorios incluidosen el preu:
• Perfils de PVC de 133 mm. amb sistema de doble junta i multicàmeres
• Reforç amb perfils d'acer galvanitzat
• Envidrament des 4 fins 41 mm.
• Possibilitat de fulla mòbil i fulla fixa
