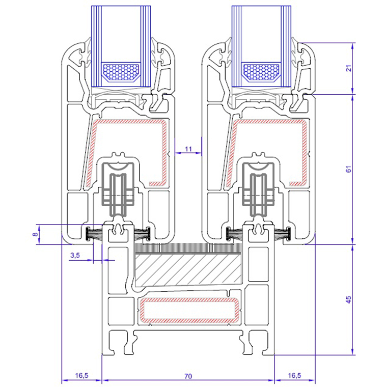
Dissenyada amb el sistema de doble junta i multicàmeres, els perfils de PVC de 70 mm. ofereixen molts avantatges respecte als de 60 mm. Més, aquesta sèrie ha estat especialment dissenyada per disminuir l'impacte visual del marc al mínim. Gràcies als seus reforços especials i interlocks d'inèrcia, poden fabricar tant finestres com portes corredisses de grans dimensions, mantenint totes les propietats d'una finestra de PVC (aïllament tèrmic i acústic) i la funcionalitat d'una finestra corredissa.
Obertures: corredissa.
Buit de llum per envidrar: des 6 mm. fins 26 mm.
Proves d'assaig (més informació a Catàlegs i Descàrregues):
• Transmitància tèrmica: 2,8 W/m2.K
• Resistència a l'aire: Classe 3
• Aïllament acústic: 31 dB
• Resistència a l'aigua: Classe: 7A
• Resistència al vent: Classe 5
Imprimir

PVC 100
Accesorios incluidosen el preu:
• Perfils de PVC de 70 mm. amb sistema de doble junta i multicàmeres.
• Reforç amb perfils d'acer galvanitzat
• Envidrament des 6 fins 26 mm.
