Sistema cortafuegos practicable que permite la sectorización
y la evacuación de los usuarios al ofrecer 60 minutos de
resistencia al fuego. Ensayo de resistencia al fuego y control
de humo: CLASE EI 60 – C5.
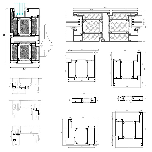
Profundidad del marco y hoja: 80 mm. Poliamida de 35 mm.
Espesor del perfil: 2,2 mm. Acristalamiento máximo: 48 mm.
Peso máximo/hoja: 240 KG. Máximas dimensiones/hoja:
L: 1.500 mm, H: 2.600 mm. Posibilidades de apertura
(interior o exterior): practicable (1 o 2 hojas).
Posibilidad de colocar dispositivos antipánico, cierrapuertas
automáticos, manillería o bisagras con características
ignífugas homologadas.
Pruebas de ensayo :
· Ensayo de resistencia al fuego:
CLASE EI 60 – C5
· Transmit. térmica: 1,4 W/m2.K
· Aislamiento acústico: Rw: 38 dB
Más información en nuestra web.
