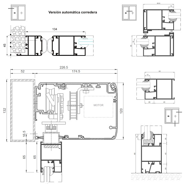
Al sistema de puerta de entrada a establecimientos se le
incorpora una motorización del tal forma que permite
aperturas automáticas deslizantes así como batientes. Este
automatismo, así como la perfilería, ha sido diseñado para un
uso constante (oficinas, centros comerciales, hospitales…).
Gracias a esta solución, se optimiza el espacio de las estancias
y, al ofrecer una opción de perfilería mínima, se consigue una
excelente estética y entrada de luz natural del exterior.
Posibilidades de apertura: 1 y 2 hojas (abatible o corredera).
Profundidad del marco y hoja: 45 mm. Espesor perfilería:
2,0 mm. Máximo acristalamiento: 30 mm. Peso máximo/hoja:
120 KG. Dimensión máxima/hoja: L: 2000 mm (corredera
automática), L: 1.100 mm (batiente o vaivén), H: 3.000 mm.
Pruebas de ensayo:
· Transmit. térmica: 2,3 W/m2.K
· Aislamiento acústico: Rw: 38 dB
· Ensayo resistencia al impacto: Clase 5 (UNE-EN 13049:2003)
Más información en nuestra web.
